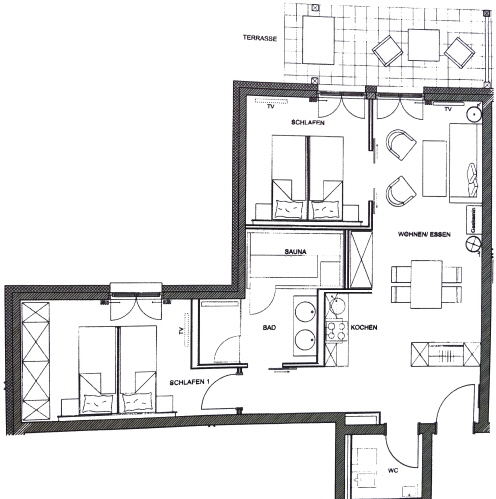
Grundriss der Ferienwohnung

Buchung